architheque
MANIFESTE
RESSOURCES
JEUX
CONTACT
Photos de projet
PiĂšces graphiques
Photographe : Sergio Grazia
Photographe : Sergio Grazia
Photographe : Sergio Grazia
Photographe : Sergio Grazia
Photographe : Sergio Grazia
Photographe : Sergio Grazia
Photographe : Sergio Grazia
Photographe : Sergio Grazia
Photographe : Sergio Grazia
Photographe : Sergio Grazia
Photographe : Sergio Grazia
Photographe : Sergio Grazia
Schéma 1 : intégration du projet
Schéma 2 : intégration du projet
Schéma 3 : intégration du projet
Schéma 4 : intégration du projet
Axonométrie
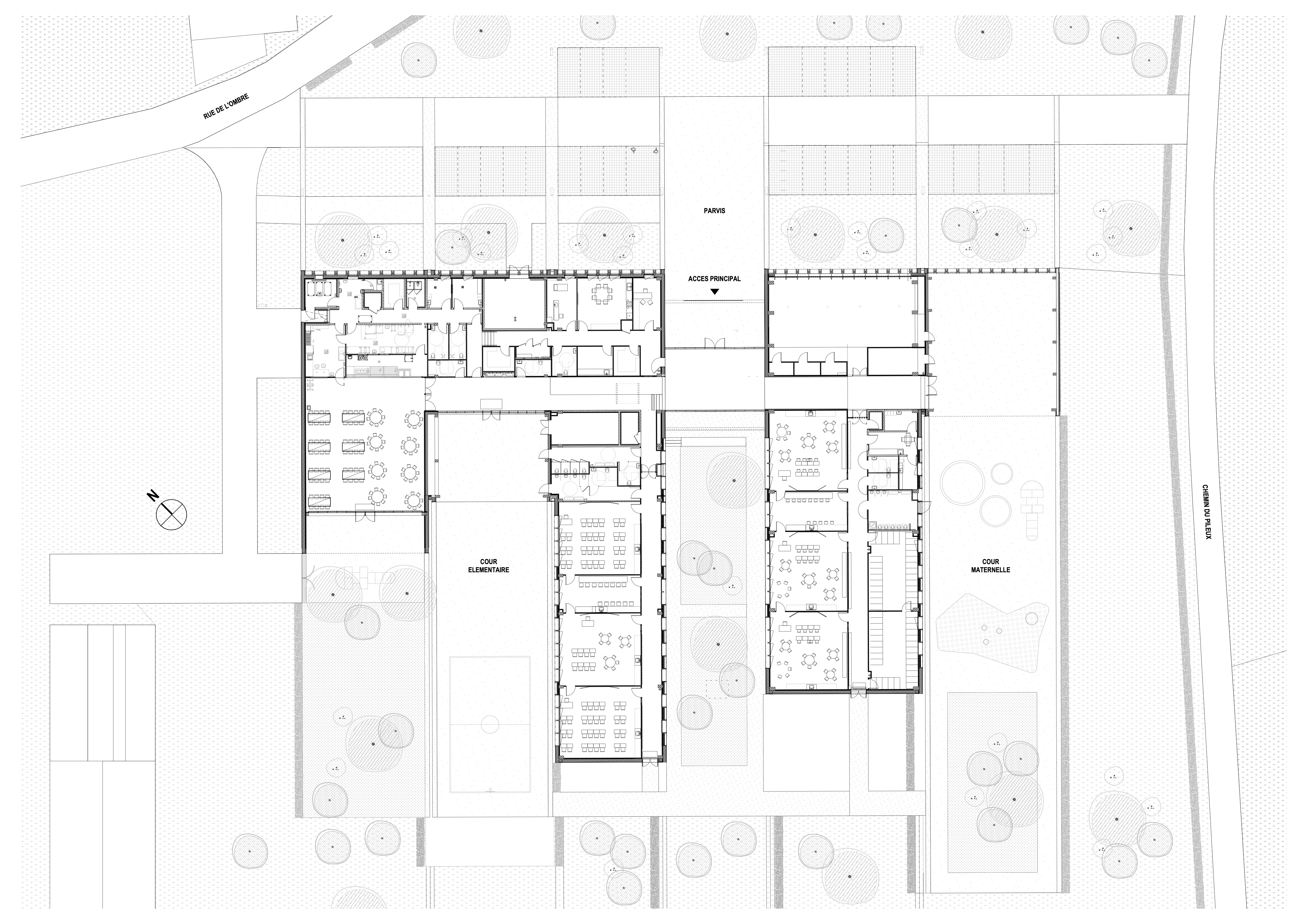
Plan
Elévation
Coupe
âź
âŻ
Ecole les coteaux fleuris
+
Dans un site remarquable dont la toile de fond est constituĂ©e des coteaux de la vallĂ©e de la Seine, cette nouvelle Ă©cole est accrochĂ©e au village normand dâHeudebouville (Eure). Un paysage de bocage De lâhistoire du lieu, lâĂ©cole emprunte les matĂ©riaux et la morphologie : le bois des colombages des maisons du centre-ville pour les chĂąssis vitrĂ©s et la charpente ; lâardoise du clocher et de la mairie pour revĂȘtir et protĂ©ger les façades et la toiture. La morphologie des maisons et des bĂątiments agricoles prĂ©sents sur le site est rĂ©interprĂ©tĂ©e, donnant naissance Ă de grandes longĂšres contemporaines. La gĂ©ographie du site ordonne lâimplantation de lâouvrage, les maisonnĂ©es insĂ©rĂ©es selon les courbes de niveau du terrain et respectent le sol naturel. Ces lignes directrices dĂ©limitent les cours de rĂ©crĂ©ation, dessinent des vergers et deviennent des noues rĂ©cupĂ©rant lâeau de pluie de lâensemble du site pour nourrir un bassin paysager en contre-bas. Anticiper le futur Cette organisation en strates anticipe la croissance envisagĂ©e du village et lâextension future de lâĂ©cole, chaque maisonnĂ©e ayant la possibilitĂ© de sâagrandir. Tout en respectant le schĂ©ma dâorigine, des classes peuvent ĂȘtre ajoutĂ©es, la restauration, les prĂ©aux et les cours peuvent sâĂ©tendre et lâĂ©quipement accueillir des Ă©lĂšves et usagers plus nombreux. Ă cet Ă©gard, les rĂ©seaux et les systĂšmes de sĂ©curitĂ© incendie intĂšgrent dĂ©jĂ cette possible croissance. Le systĂšme structurel en portiques, par lâabsence totale de point porteur intermĂ©diaire, permet cette Ă©volution future et une modularitĂ© complĂšte des locaux. Les façades et la toiture sont constituĂ©es de modules prĂ©assemblĂ©s hors site, associant Ă©tanchĂ©itĂ© Air/ Eau, isolant et structure. Les piĂšces de 5x2 m, dĂ©veloppĂ©es en 3D avec le charpentier, ont permis de maĂźtriser les dĂ©lais de chantier. Empreinte carbone La construction de lâĂ©cole sâinscrit dans une dĂ©marche de rĂ©duction de son empreinte carbone. Lâusage du bois, de lâardoise, lâintĂ©gration de panneaux photovoltaĂŻques et lâabsence de consommation dâĂ©nergie fossile pour le chauffage de lâĂ©quipement permettent dâatteindre les ambitieux niveaux E3C2 et BEPOS. Enfin, le chantier a Ă©tĂ© entiĂšrement rĂ©alisĂ© avec des matĂ©riaux locaux et des entreprises implantĂ©es dans la rĂ©gion.
Aucun contenu audio disponible.
Légende
Projet
Concepteurs
Entreprises
Fournisseurs
Matériaux
Comme il coche à minima deux critÚres dans quatre catégories (sur les cinq), ce projet a été sélectionné pour figurer dans cet atlas.
site, existant et implantation
Le projet est une rénovation, une réhabilitation, ou surélévation
℠50 % de la surface existante est conservée OU démontage sélectif documenté
L'artificialisation des sols est limitée : ℠50 % de la parcelle est perméable aprÚs travaux
L'implantation est bioclimatique (â„ 2 principes visibles (orientation solaire, ombrage / masques solaires, implantation des volumes)
Les fondations sont optimisées (pieux bois possibles, semelles réduites, optimisation structurelle, technopieux, etc.)
L'architecture du projet s'intĂšgre dans son contexte environnant
Le projet a été primé (prix régional)
Biodiversité et vivant
Au moins 30 % de la surface de la parcelle est végétalisée (ou toiture végétalisée)
Au moins 50 % de la végétation existante est conservée
Au moins 70 % des essences plantées sont locales ou indigÚnes
Plantation d'au moins une essence comestible pour les humains (arbre fruitier, potager, aromatiqueâŠ) OU d'une essence nourriciĂšre pour la faune (baies, fruits, graines)
Présence d'un verger (pommiers)
PrĂ©sence d'au moins un dispositif d'accueil pour la faune (nichoir, gĂźte, passage faune, dĂ©bord de toitureâŠ)
Présence de débord de toiture
Vitrages traités anti-collision oiseaux
Les clÎtures sont perméables à la petite faune (si clÎture)
Mise en oeuvre de clĂŽture Ă barreaudage vertical
Le projet est labellisé ou primé (BiodiverCity, Effinature, prix paysage)
Matériaux, structure et ressources
Utilisation du bĂ©ton limitĂ©e aux fondations, socle, noyaux dâascenseurs, parkings enterrĂ©s OU bĂ©ton recyclĂ© documentĂ©. (NOTA : La production de ciment conventionnel reprĂ©sente entre 6 et 8 % des Ă©missions mondiales de CO2 - ADEME)
La dalle de plancher est en béton de ciment bas carbone
L'isolation principale est biosourcée ou recyclée
Un matériau utilisé provient de moins de 200km du site de projet
Une entreprise localisée à moins de 200km du site de projet est intervenue
Valables pour tous les lots
Le bois est certifiĂ© ou traçable (NOTA : Si le bois est un matĂ©riau Ă©cologique dont lâutilisation permet, entre autre, de prolonger le cycle de vie, sa production, elle, nâest pas forcĂ©ment durable. Aujourdâhui, lâexploitation irresponsable des forĂȘts a des consĂ©quences sociales et environnementales trĂšs lourdes : rĂ©duction de la biodiversitĂ©, Ă©rosion, pollution de lâeau ou perturbation de son cycle, voir mĂȘme, dĂ©forestation. - WWF France)
Le bois est soumis aux labels FSC et PEFC
Les matériaux intérieurs sont à faibles émissions (naturels ou fiche produit A+)
Le projet est labellisé ou primé (Prix construction bois, matera Award, Certifié paille)
Energie, air, eau et confort
Mise en place d'une ventilation naturelle ou double flux
Absence de climatisation technologique
Mise en place de protections solaires extérieures
Chùssis avec stores intégrés
Utilisation d'un dispositif de production d'énergie renouvelable
Intégration de panneaux photovoltaïques
Les eaux pluviales sont gérées (noue, cuve, ...)
Des noues rĂ©cupĂ©rent lâeau de pluie de lâensemble du site pour nourrir un bassin paysager en contre-bas
Utilisation d'équipements hydro-économe pour réduire les consommations d'eau (toilettes sÚches, limiteur de débit, mousseur)
Le projet est labellisé (BEPOS, Passivhaus, Minergie, BBC rénovation, BBC Effinergie, HQE)
BEPOS & E3C2
Cycle de vie, réemploi et inclusion
Le projet est pensé réversible/évolutif (℠2 critÚres (trame structurelle réguliÚre, trame d'ouverture séquensée, hauteurs libres ℠2,70 m, réseaux accessibles, noyaux techniques.)
Plateau libre (absence de points porteurs intermédiaires) + Réseaux regroupés + Hauteurs libres ℠2,70 m
Utilisation d'assemblages mécaniques démontables
Mise en oeuvre d'au moins un élément de réemploi dans le clos-couvert (façade, structure, menuiseries extérieures, couverture)
Mise en oeuvre d'au moins un Ă©lĂ©ment de rĂ©emploi dans le second oeuvre (cloisons, revĂȘtements, mobilier)
100% du projet est accessible aux personnes à mobilité réduite
Le projet intÚgre les riverains ou un processus pédagogique (chantier participatif, concertation, habitat participatif)
Le projet est labellisé ou primé : réemploi, inclusion, circularité (cradle to cradle, prix innovation sociale)
Données générales
Localisation :
Heudebouville (27) | France
Surface de plancher :
1Â 500 mÂČ
Budget :
4 500 000 ⏠HT
Livraison :
2Â 022
Matérialité :
Structure bois | Couverture en ardoise
Ăquipe de conception
MaĂźtrise d'ouvrage :
Ville dâHeudebouville
Architecte :
HEMAA
Architecte :
Hesters-Oyon
BET Tout corps d'état :
BETEM
Entreprises / Artisan·es
Vous ĂȘtes constructeur·rice sur ce projet ?
Contactez-nous !
Fournisseur·es
Vous ĂȘtes fournisseur·e sur ce projet ?
Contactez-nous !
Détails à télécharger
â
ChargementâŠ