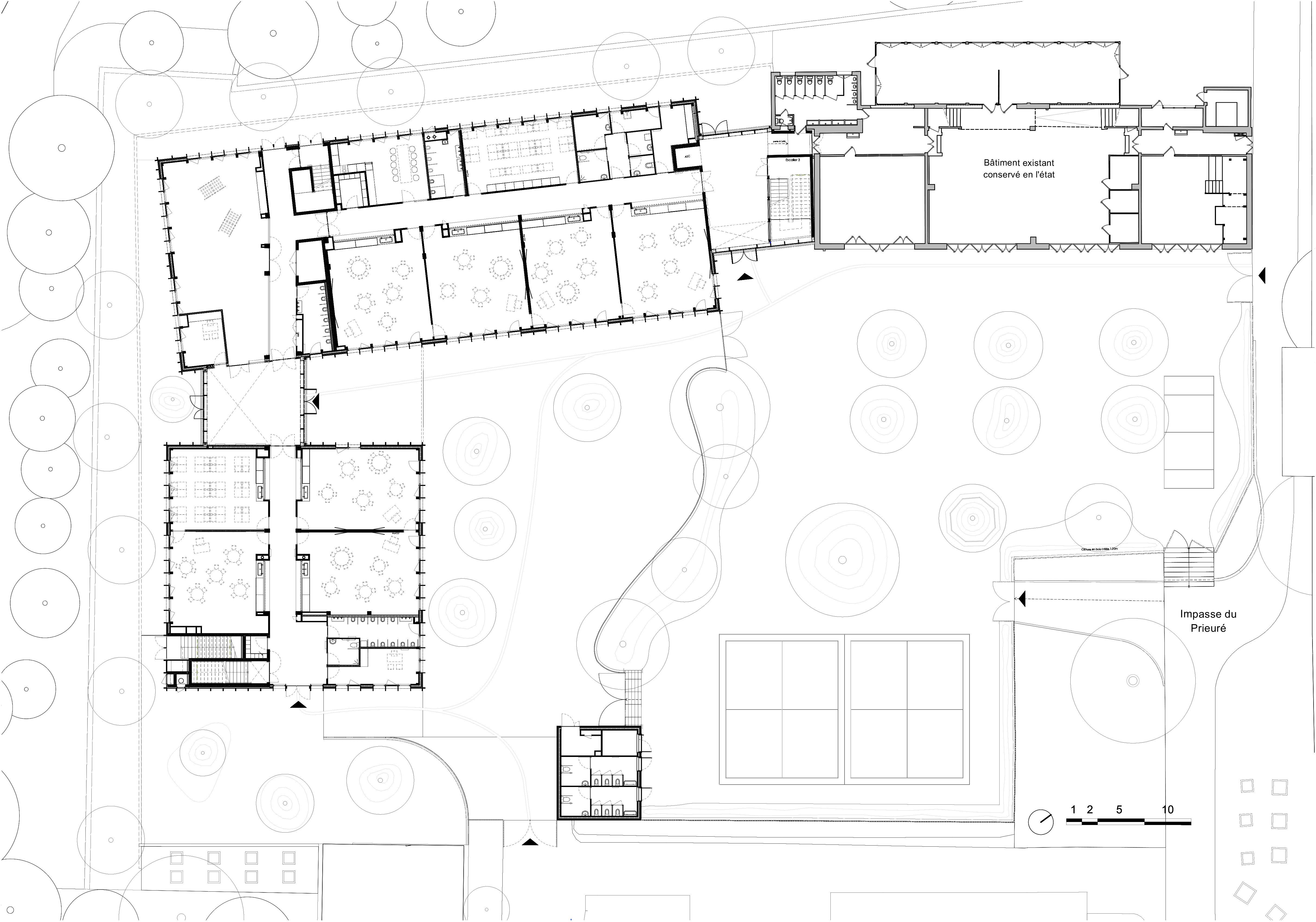
Le groupe scolaire Les Violettes est un village dans le village de Mareil-Marly. Situé sur les hauteurs de la commune, le site est bordé de nombreux arbres remarquables et bénéficie d’une vue dégagée vers l’ouest de la métropole parisienne d’où émergent les tours de La Défense. Les bâtiments existants, d’architectures et d’époques variées sont entourés d’arbres et de végéta on et offrent un cadre privilégié pour les enfants. HEMAA a conçu une école-jardin qui conserve et magnifie les qualités de cet environnement naturel. L’ouvrage, dans sa matérialité – bois et verre – reflète les frondaisons tandis que l’organisation spatiale est faite de transparence entre corps de bâtiments et d’ouverture vers le ciel. Afin de dégager la plus grande surface possible pour des cours protégées des vents dominants, les deux nouveaux bâtiments sont implantés à l’angle ouest du terrain. Les deux volumes neufs et le bâtiment existant de l’école élémentaire sont reliés entre eux par deux failles lumineuses qui accueillent les halls traversants en double hauteur : la première, à la jonction avec la construction existante, correspond au hall élémentaire ; la seconde, associant hall et préau maternel, apporte une lumière naturelle abondante dans la rue intérieure. La maternelle est aménagée uniquement en rez-de-chaussée et toutes les classes disposent d’un accès de plain-pied sur la cour, un vœu des équipes enseignantes. Dans l’ancienne et la nouvelle cours, les zones de pleine terre autour des arbres existants ont été agrandies. Ce sont vers elles, en léger creux, que sont redirigées les eaux pluviales pour favoriser l’infiltration naturelle. Le choix d’une structure en bois français légère et préfabriquée à permis de réduire l’impact (bruit, durée) des travaux en phase chantier vis-à-vis du site encore occupé par la communauté scolaire. La fragmentation de l’ouvrage est affirmée au travers d’un traitement de façade différent entre le rez-de-chaussée et l’étage. Le premier niveau, repère visuel pour les enfants, forme un socle largement ouvert sur les cours. Il est habillé de lames de bois ver cales traitées en usine. Ce bardage en Douglas français est pré grisé par imprégnation afin de figer et de pérenniser son aspect dans le temps. L’étage est enveloppé d’une robe réfléchissante composée de panneaux d’aluminium miroir alternant avec les baies vitrées. La façade reflète ainsi les frondaisons des arbres, le ciel et, au loin, le grand paysage. Le bâtiment change ainsi d’aspect et de couleurs au fil des saisons et de la météo. Les toitures aux courbes douces et tendues semblent en suspension dans le ciel au dessus des cours. À l’intérieur, les matériaux bruts ont été favorisés. Le bois de la charpente est visible partout, les murs en béton préfabriqués des halls qui contreventent l’ensemble sont laissés apparent sans traitement. L’acoustique est assurée par de la fibre de bois compactée de couleur naturelle entre les poutres de charpente. L’isolation est en laine de bois. Les réseaux sont apparents et bien calepinés. La compacité du bâtiment au profit des cours a conduit à installer des circulations centrales distribuant des locaux des deux côtés. Afin d’éclairer naturellement ces espaces, des châssis sont positionnés sur les cloisons entre les salles et la circulation. Les extrémités de ces espaces de desserte sont également vitrées de sorte que le regard trouve en tout point une vue vers l’extérieur et la végétation.
Aucun contenu audio disponible.
Légende
Projet
Concepteurs
Entreprises
Fournisseurs
Matériaux
Comme il coche à minima deux critères dans quatre catégories (sur les cinq), ce projet a été sélectionné pour figurer dans cet atlas.
site, existant et implantation
Afin de dégager la plus grande surface possible pour des cours protégées des vents dominants, les deux nouveaux bâtiments sont implantés à l’angle ouest du terrain + compacité des bâtiments
Biodiversité et vivant
Matériaux, structure et ressources
Mise en oeuvre du béton de ciment pour la dalle de RDC et R+1 ainsi que les circulations
L'isolation est en laine de bois
Le bois est soumis aux labels FSC et PEFC
Energie, air, eau et confort
Mise en oeuvre d'une ventilation double flux
Les eaux pluviales sont dirigées vers les zones de pleine terre pour favoriser l'infiltration naturelle
Label E=C (niveau E3C1)
Cycle de vie, réemploi et inclusion
Présence d'un ascenseur desservant les différents niveaux
Chantier en site occupé (Le choix d’une structure en bois français légère et préfabriquée a permis de réduire l’impact (bruit, durée) des travaux en phase chantier)
Données générales
Localisation :
Mareil-Marly (78) | France
Surface de plancher :
1 997 m²
Budget :
7 300 000 € HT
Livraison :
2 024
Matérialité :
Façades MOB revêtues de bardage bois et d’aluminium miroir | Plafond en fibre de bois | Isolation en laine de bois | Charpente bois | Bardage en douglas français pré-grisé