Photographe : Juan Cardona
Photographe : Juan Cardona
Photographe : Juan Cardona
Photographe : Juan Cardona
Photographe : Juan Cardona
Photographe : Juan Cardona
Photographe : Juan Cardona
Photographe : Juan Cardona
Photographe : Juan Cardona
Photographe : Juan Cardona
Photographe : Juan Cardona
Photographe : Juan Cardona
Photographe : Juan Cardona
Photographe : Juan Cardona

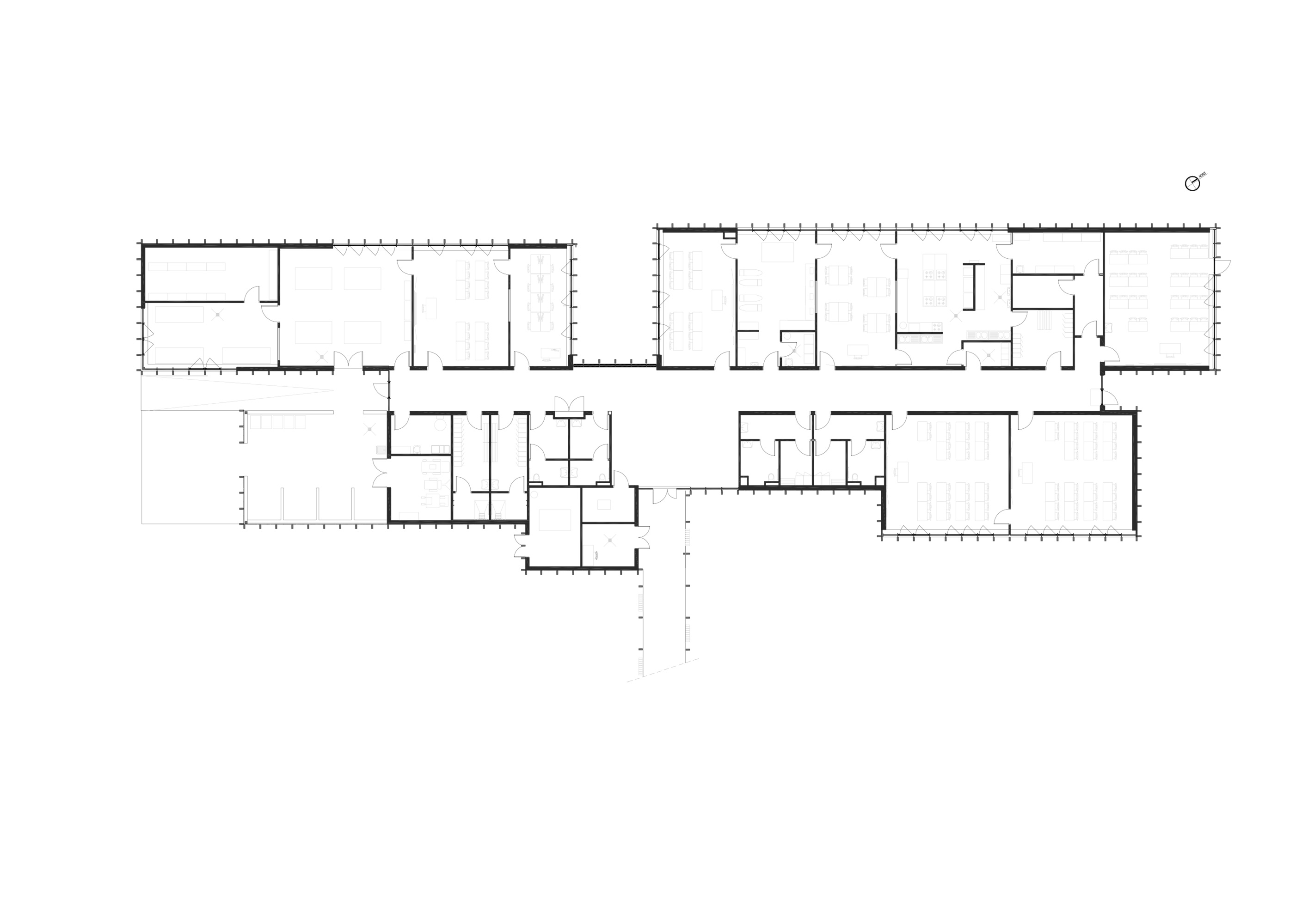
Extension du collège Frida kahlo

Le projet d’extensions du collège actuel nait d’un besoin croissant en espaces d’enseignement, notamment à destination de la section d’enseignement général et professionnel adapté (SEGPA). Cette section est dédiée aux élèves présentant des difficultés scolaires importantes. Une réserve foncière à l’Ouest de la construction récente est prévue pour accueillir le projet, en lisière d’un bois. Issu d’une architecture d’échelle domestique et fonctionnelle, le projet puise sa force dans des références locales. La morphologie s’inspire des compositions de village vernaculaire : celles aux formes agglomérées et aux jeux de toitures variées. La générosité des volumes est mise à profit des espaces d’ateliers et invite ses utilisateurs à découvrir une nouvelle manière d’apprendre par le biais de la mise en pratique. Dans une logique de valorisation des métiers artisanaux, la structure est entièrement réalisée en bois français. Le bardage des parties courantes est en panneaux 3 plis de douglas. Les volumes hauts sont bardés en lames de bois avec saturateur noir. Un système de récupération des eaux pluviales est prévu pour alimenter le système d’arrosage de la serre et de l’aire d’application extérieure. L’éclairage naturel de tous les espaces permet d’optimiser les dépenses énergétiques. L’ensemble de ces choix permettent d’atteindre un niveau équivalent E3C1. D’une part, l’extension Ouest joue le rôle de vitrine de la production et du savoir faire de la Section d’Enseignement Général et Professionnel Adapté (SEGPA) et participe à une meilleure intégration de ses élèves au sein du collège. Liée au collège existant par une galerie couverte (forum et hall), elle est traversée par une circulation unique distribuant le pôles Espace Rural et environnement (ERE) ouvert au Sud sur des parcelles potagères et un verger, et le pôle Hygiène Alimentation Services (HAS) avec cuisine et espace couture, repassage. D’autre part, l’extension Est s’aligne respectueusement sur les façades et les lignes directrices du collège existant et achève le dispositif architectural.
Aucun contenu audio disponible.
Légende
Projet
Concepteurs
Entreprises
Fournisseurs
Matériaux
Comme il coche à minima deux critères dans quatre catégories (sur les cinq), ce projet a été sélectionné pour figurer dans cet atlas.

site, existant et implantation

Biodiversité et vivant

Matériaux, structure et ressources

Energie, air, eau et confort

Cycle de vie, réemploi et inclusion

Données générales

Localisation :
Pontchâteau (44) | France
Surface utile :
1 271 m²
Budget :
3 700 000 € HT
Livraison :
2 023
Matérialité :
Structure en bois français | Bardage en douglas

Équipe de conception

Maîtrise d'ouvrage :
Conseil départemental de Loire-Atlantique
Paysagiste :

Entreprises / Artisan·es

Vous êtes constructeur·rice sur ce projet ?
Contactez-nous !

Fournisseur·es

Vous êtes fournisseur·e sur ce projet ?
Contactez-nous !
Détails à télécharger